06:环保之窗
3上一期   下一期4  
 
标题导航
 
2020年11月10日 星期二 出版
3 上一篇   下一篇 4  
放大 缩小 默认   
建设工程规划批前公示

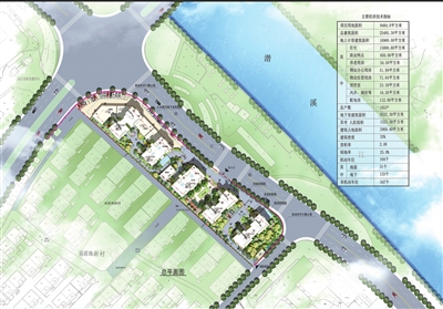
  申请人新昌县汇鑫置业有限公司向本局提出建设工程规划许可申请,现予以批前公示。具体图纸公示在新昌县规划公示展示中心(规划公示展示中心地址:新昌县鼓山中路177号),公示日期为2020年11月10日至11月19日。

  建设情况如下:

  建设单位:新昌县汇鑫置业有限公司;

  项目名称:月亮湾人家;

  建设地点:新昌县七星街道庙前地村(2019年经6号);

  建设用地性质:  居住、商业混合用地;

  总用地面积:  8484㎡;

  总建筑面积:  25495.3㎡;

  地上建筑面积:  16968㎡;

  地下建筑面积:   8527.3㎡;

  容积率:     2.0;

  建筑密度:     35%;

  建筑层数:     1-9F;

  建筑高度:    4.35m-28.2m(檐口高度);

  如对本工程规划有意见和建议,请在公示期间以书面形式向规划公示展示中心反映。申请人和利害关系人享有要求听证的权利,如要求听证的,请予公示期满后留意网站(http://www.zjxc.gov.cn/)。

  联系电话:0575-86083531

  新昌县自然资源和规划局

  二〇二〇年十一月十日

3 上一篇   下一篇 4  
放大 缩小 默认   
   第01版:一版要闻
   第02版:时政要闻
   第03版:社会民生
   第04版:学习贯彻五中全会精神
   第05版:沃洲论坛
   第06版:环保之窗
   第07版:生活社区
   第08版:公益广告
新昌县环境质量月报
建设工程规划批前公示
今日新昌环保之窗06建设工程规划批前公示 2020-11-10 2 2020年11月10日 星期二