07:专版专刊
3上一期   下一期4  
 
标题导航
 
2020年03月10日 星期二 出版
3 上一篇   下一篇 4  
放大 缩小 默认   
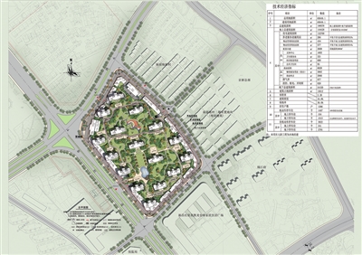
建设工程规划批前公示
  申请人绍兴广都房地产开发有限公司向本局提出建设工程规划许可申请,现予以批前公示。具体图纸公示在新昌县规划公示展示中心(规划公示展示中心地址:新昌县鼓山中路177号),公示日期为2020年3月10日至3月19日。 

  建设情况如下: 

  建设单位:绍兴广都房地产开发有限公司; 

  项目名称:锦洲府; 

  建设地点:新昌县庙前地村(2019年经2号); 

  建设用地性质:居住、商业混合用地; 

  总用地面积:65649.1㎡; 

  总建筑面积:198578㎡; 

  地上建筑面积:144428㎡; 

  地下建筑面积:54150㎡; 

  容积率:2.2; 

  建筑密度:23.8%; 

  绿地率:30%; 

  建筑层数:1~26F; 

  建筑高度:4.4m~77m(檐口高度); 

  如对本工程规划有意见和建议,请在公示期间以书面形式向规划公示展示中心反映。申请人和利害关系人享有要求听证的权利,如要求听证的,请予公示期满后留意网站(http://www.zjxc.gov.cn/)。 

  联系电话:0575-86083531

  新昌县自然资源和规划局 

  二〇二〇年三月十日

3 上一篇   下一篇 4  
放大 缩小 默认   
   第01版:一版要闻
   第02版:众志成城·打赢防控阻击战发展总体战
   第03版:众志成城·打赢防控阻击战发展总体战
   第04版:学在新昌
   第06版:众志成城·打赢防控阻击战发展总体战
   第07版:专版专刊
   第08版:众志成城·打赢防控阻击战发展总体战
建设工程规划批前公示
致全县排污单位的一封信
注销公告
信息广场
鼻子需要除痘祛螨
广告
广告
今日新昌专版专刊07建设工程规划批前公示 2020-03-10 2 2020年03月10日 星期二